Year
Location
Type
Services
Developer
Size
Status

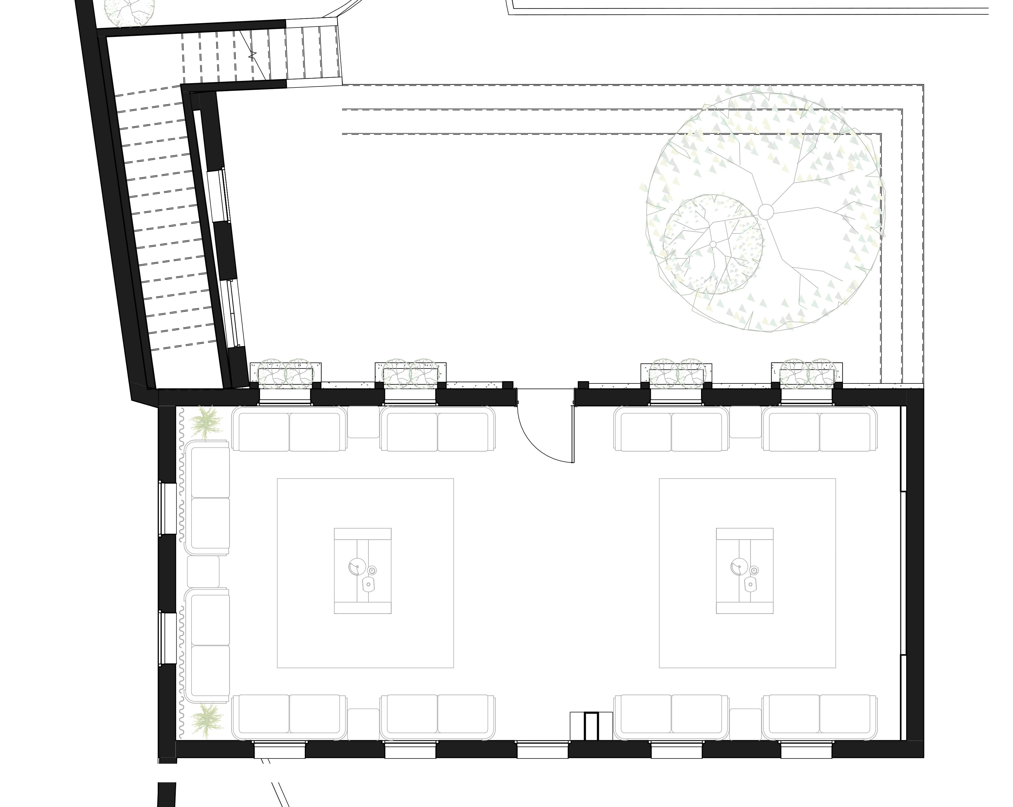
Ecoharmony Residence is a 1,200 m² residential renovation in Barka, Oman, focused on sustainability and cultural integration. The project features a redesigned landscape and a shaded roof equipped with a solar panel system. Local materials such as wood, stone, and straw were used to enhance the building’s environmental performance while reflecting traditional Omani architecture. The design harmonizes with the desert surroundings, creating a resilient and comfortable home that merges modern energy solutions with regional architectural heritage. By respecting the local environment and culture, Ecoharmony Residence exemplifies sustainable luxury, blending contemporary living with the timeless aesthetics of Omani tradition. We renovated the landscape of the house and installed a shaded roof with a solar panel system. In the renovation, we used local materials from Oman, such as wood, stone, and straw. This approach not only enhances the sustainability of the building but also blends the structure harmoniously with its natural surroundings, reflecting the traditional architecture of the region while incorporating modern energy solutions. This renovation respects the local environment and culture, creating a modern yet traditional home that is both sustainable and comfortable. The overall design harmonizes with the desert surroundings, enhancing the building's resilience against the harsh climate of Oman.




.jpg&w=3840&q=75)

